, Leipzig
1.641 EUR
Beschreibung
Technik & Energie – zeitgemäß und effizient
Das Gebäude ist technisch auf einem modernen Stand:
Ladesäulen für E-Autos
• Fußbodenheizung über zentrale Heizungsanlage
• Wärmepumpe in Kombination mit Pv (signifikant niedrigere Betriebskosten)
• moderne Elektroinstallation mit zahlreichen Steckdosen
• Multimediaanschlüsse (TV, Internet, CAT 7) in allen Wohnräumen
• Video-Sprechanlage und Rauchmelder
• energieeffiziente Bauweise mit Wärmedämmung
🪵 Edle Materialien & perfekte Verarbeitung
Warme Echtholzböden aus hochwertigem Parkett verleihen den Wohnräumen eine natürliche Eleganz und sorgen für ein angenehmes Raumklima. Großzügige Fensterflächen lassen viel Tageslicht herein und schaffen fließende Übergänge zwischen Innen und Außen.
Die Kombination aus:
• fein abgestimmten Materialien
• präziser handwerklicher Ausführung
• zeitloser Farbgestaltung
macht jede Wohnung zu einem Ort, an dem man gerne ankommt und bleibt.
Wellness im eigenen Zuhause
Die Bäder präsentieren sich als private Rückzugsorte mit Spa-Charakter:
• bodengleiche Duschen mit klaren Linien
• hochwertige Markenarmaturen
• stilvolle Feinsteinzeugfliesen
• großzügige Badewannen (je nach Grundriss)
Hier beginnt und endet jeder Tag mit einem Hauch von Luxus.
Bauqualität – solide und nachhaltig
Die Bauweise überzeugt durch Stabilität und Wertigkeit:
• massive Bauweise (Kalksandstein / Stahlbeton)
• hochwertige Wärmedämmung
• schallentkoppelte Konstruktionen
• repräsentatives Treppenhaus mit durchdachtem Gestaltungskonzept
• langlebige Materialien in allen Bereichen
Exklusiver Neubau in Leipzig-Stötteritz – modernes Wohnen in Bestlage
In attraktiver und familienfreundlicher Lage von Leipzig-Stötteritz entsteht in der Breslauer Straße 4 ein hochwertiges Neubauprojekt, das modernes Wohnen mit nachhaltiger Wertstabilität verbindet. Das Objekt überzeugt durch eine durchdachte Architektur, hochwertige Ausstattung sowie eine ausgezeichnete Mikrolage mit idealer Infrastruktur.
Wohnen auf höchstem Niveau – Stil, Komfort und Eleganz vereint
Willkommen in einem Zuhause, das keine Kompromisse kennt. Diese exklusive Neubauimmobilie verbindet zeitlose Architektur, hochwertige Materialien und modernste Wohntechnik zu einem Wohnkonzept, das höchsten Ansprüchen gerecht wird.
Schon beim Betreten entfaltet sich ein Gefühl von Großzügigkeit: lichte Raumhöhen von ca. 2,80 Metern, klare Linien und eine durchdachte Raumgestaltung schaffen ein Ambiente, das Ruhe, Stil und Eleganz ausstrahlt.
Ein Zuhause für höchste Ansprüche
Diese Immobilie richtet sich an Menschen, die mehr erwarten als nur Wohnraum – an diejenigen, die Wert legen auf Qualität, Ästhetik und ein besonderes Lebensgefühl. Ein Ort, der nicht nur Raum bietet, sondern Lebensqualität schafft.
Lage – urban, grün und hervorragend angebunden
Leipzig zählt zu den dynamischsten Städten Deutschlands und belegt im bundesweiten Vergleich der wirtschaftsstärksten Städte einen Spitzenplatz.
Der Stadtteil Stötteritz gehört zu den beliebtesten Wohnlagen Leipzigs und bietet:
• ruhige, grüne Umgebung mit Nähe zum Stötteritzer Wäldchen
• hervorragende Nahverkehrsanbindung in die Innenstadt
• fußläufig erreichbare Einkaufsmöglichkeiten, Schulen und Kitas
• gewachsene, familienfreundliche Nachbarschaft
Die Kombination aus urbanem Leben und naturnaher Umgebung macht diesen Standort besonders attraktiv.
Das Objekt – moderne Architektur & nachhaltige Qualität
Das Neubauvorhaben umfasst insgesamt:
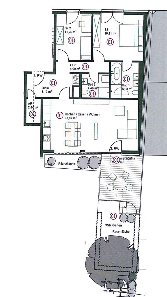
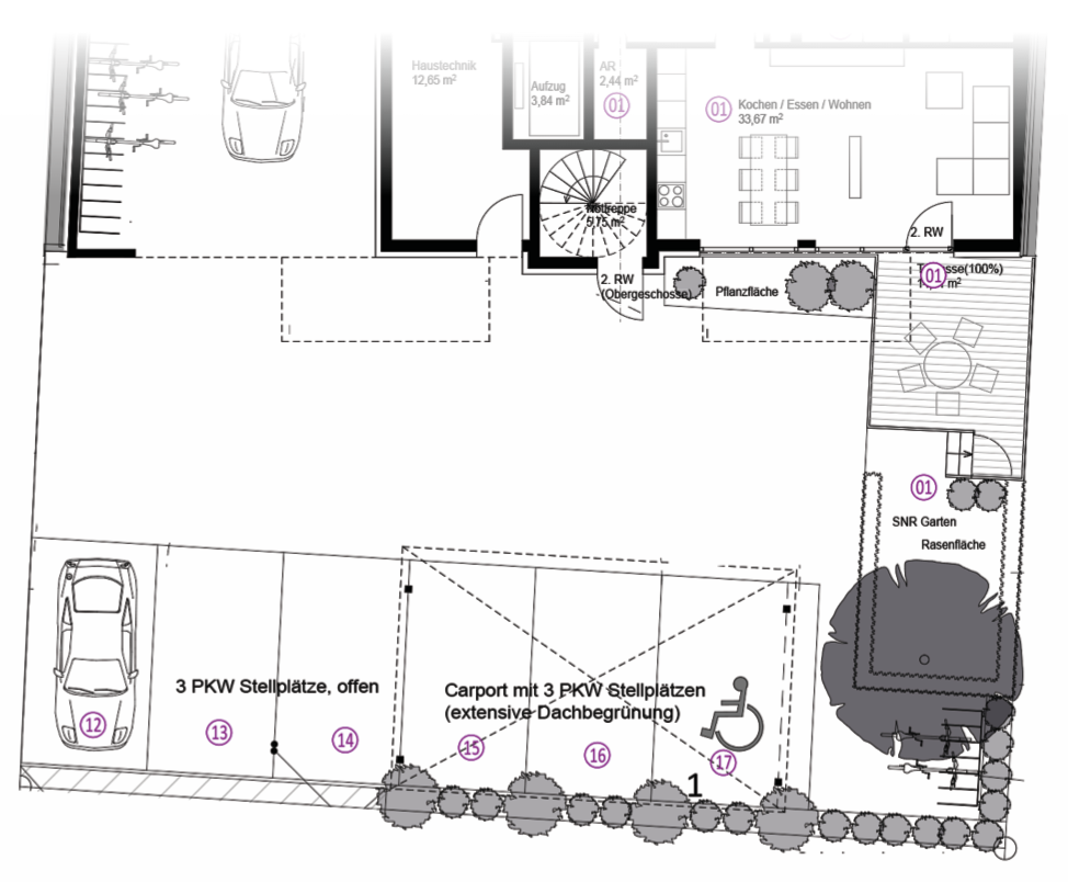
• 11 Wohneinheiten
• Wohnungsgrößen von ca. 64 m² bis 108 m²
• 6 Stellplätze (offen und Carport)
• Aufzug vom Erdgeschoss bis ins Dachgeschoss
Die Wohnungen sind optimal geschnitten und bieten zeitgemäßen Wohnkomfort für Mieter.
Ausstattung – hochwertig und durchdacht
Das Gebäude überzeugt durch eine moderne und langlebige Bauausführung mit zahlreichen Ausstattungsdetails:
• Eichenparkett in Wohn- und Schlafräumen
• Fußbodenheizung mit Einzelraumsteuerung
• großzügige Raumhöhen von ca. 2,80 m
• bodentiefe Fenster mit Wärmeschutzverglasung
• moderne Bäder mit Marken-Sanitärobjekten
• Video-Gegensprechanlage
• Balkone / Terrassen mit hochwertigem Holzbelag
• Personenaufzug (barrierearm)
Die hochwertige Bauweise sorgt für ein angenehmes Wohnklima und langfristige Werthaltigkeit.
Außenbereiche mit Lebensqualität
Die privaten Balkone und Terrassen mit edlen Holzbelägen bieten Raum für entspannte Stunden im Freien. Hier genießen Sie Ruhe, Licht und ein Wohngefühl, das weit über den Standard hinausgeht.



